Weiss profil: Thermo Pro WP85

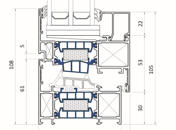
С Thermo Pro WP85 Flat получавате премиум алуминиева система с монтажна дълбочина 85 мм и прекъснат термичен мост, осигуряваща топлоизолация Uw = 0.9 W/m²K, звукоизолация до 47 dB и възможност за троен стъклопакет до 60 мм. Плоският (flat) дизайн с тънки видими профили придава изчистен и модерен вид, а усиленото уплътнение гарантира защита до клас RC2.

ПРедимства

✓ Топлоизолация Uw = 0.9 W/m²K
✓ Звукоизолация до 47 dB
✓ Противовзломна защита до клас RC2

Описание

Thermo Pro WP85 Flat е премиум алуминиева система с монтажна дълбочина 85 мм и прекъснат термичен мост, проектирана за максимална енергийна ефективност и изчистена визия. С 39 мм полиамидна термопрекаска и двустепенно EPDM уплътнение системата постига Uw ≈ 0.9 W/m²K и шумоизолация до 47 dB, осигурявайки отличен комфорт и минимални топлинни загуби. Плоският (flat) профил с тънки видими ръбове позволява максимално остъкляване и елегантен минималистичен дизайн.

Thermo Pro WP85 Flat поддържа единично, двоен или троен стъклопакет (24–60 мм), съвместим е с Euro-канал обков, Tilt&Turn механизми и многоточкови заключващи системи за клас RC2 сигурност. Профилите се предлагат във всички RAL цветове и дървесни декори, а лесният монтаж чрез универсални сглобки прави Thermo Pro WP85 Flat предпочитан избор за входни врати, завеси и големи остъклени витрини в модерни, енергийно ефективни и пасивни сгради.

Искане на информация

Обади се

+359 896 755 655

Имейл адрес

aluminabg@gmail.com

ТЕХНИЧЕСКИ ДАННИ И ХАРАКТЕРИСТИКИ

Материал на профила

Алуминий с непрекъснат термичен мост (полиамид)

Монтажна ширина на касата

77 mm

Ширина на крилото (сглобка)

85 mm

Полиамидна вложка

39 mm (Technoform Bautec)

Уплътнения

2 EPDM (вътрешно + централен)

Стъклопакет (мин./макс., mm)

24 – 60 mm

Топлопреминаване (Uw)

0.9 W/m²K

Въздушнопропускливост

Клас 4 (EN 12207)

Водонепропускливост

Клас A9 (EN 12208)

Устойчивост на вятър

Клас 5C (EN 12210)

Обков

Euro-канал (съвместим с Tilt&Turn и многоточкови системи)

Алумина ООД

Над 12 години опит в проектирането, производството и монтажа на алуминиева и PVC дограма. Комбинираме иновативни технологии с безкомпромисно качество и индивидуален подход към всеки клиент.

Раб. време:

Пон–Пет: 08:00–18:00
Съб–Нед: почивни

© 2025 Алумина ООД. Всички права запазени.